日本は「2050年の温室効果ガス排出ゼロ」を打ち出しましたが、LNG(Liquefied Natural Gas;液化天然ガス)のクリーンなエネルギーとしての需要は、安定供給が可能なことに加えて、CO2排出量が少ない低炭素燃料であることから、高くなっています。LNGは、-162℃の超低温であり、貯蔵・運搬には真空断熱されたタンク及びタンクローリーが必要となります。LNGタンクは、内槽と外槽からなる二重構造となっており、内部の極低温を保つため、内槽と外槽の間の空間は高真空状態にして、高度の断熱性能を維持するように設計されています。
大阪真空のルーツ真空ポンプと油回転真空ポンプを組み合わせたPRM真空排気システムは、このLNGの輸送容器・タンクの製造に使用されます。今回、LNGの輸送容器・タンクの高度な断熱性能を実現した事例を紹介いたします。
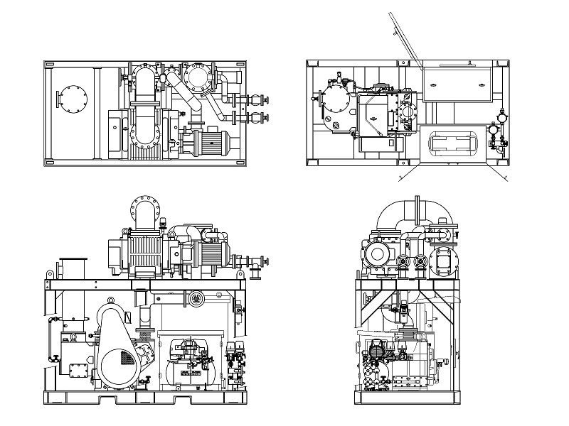
[真空排気システム外観図]
このPRM真空排気システムは、ルーツ真空ポンプ(RD2500)と油回転真空ポンプ(P450)で構成されており、制御盤を共通ベッド上に設置したコンパクトなシステムです。
LNG容器の断熱層の容積と表面積は大きく、断熱効果が得られる圧力まで真空排気するためには数日間連続で運転することが必要となります。また、大型のタンクの為、タンク及び排気システムの設置場所は屋外が多く、排気システムの制御盤や電気品に対しては雨水の対策を施し、またバルブの開閉に使用する圧縮空気は排気システムの中で賄えるようにオイルフリーベビコンを搭載しています。この真空排気システムは屋外で24時間~1週間の連続運転が最低でもできる仕様となっています。
当社では、このような断熱用排気システムについては、1990年代から多数の納入実績があります。
最近では水素ステーション、水素製造プラントで使われる断熱保管容器用の真空排気システムの納入実績が増加しております。
[真空排気システム系統図]
産業分野によって必要とされる真空環境は様々です。お客様のニーズに合わせた最適な真空環境をつくるためには、様々な真空システム(排気ユニット・真空ポンプセット・真空装置)が必要になり、大阪真空は幅広いラインアップの真空製品を提供しております。高真空から低真空までの真空ポンプ、真空コンポーネントなどの単品販売だけでなく真空システムに組み込んだ状態で提案可能ですので、ぜひ当社までにお問合せください。
株式会社大阪真空機器製作所 本社・西日本営業部 TEL 06-6203-3981
東日本営業部 TEL 03-3546-3731
名古屋営業部 TEL 052-950-3051



